Ahojte.
Mám takový problém se zapojením dvou kamer.
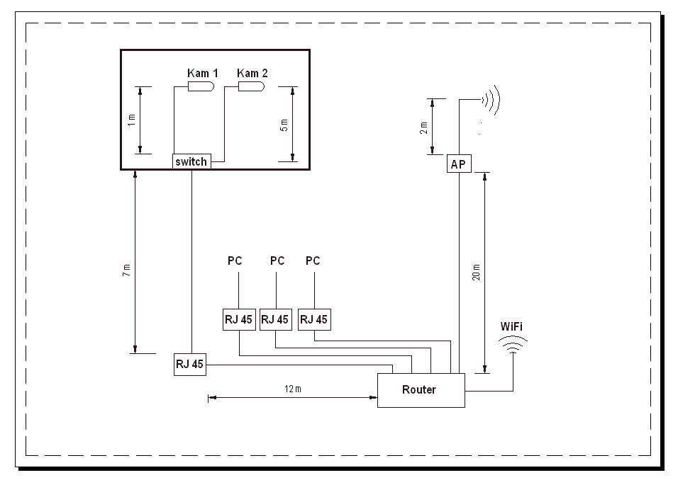
Doma mám rozvod UTP kabelem od routeru do zásuvek RJ 45.
Na jednu zásuvku potřebuji zapojit obě kamery. Nakreslil jsem schéma,
jak to asi má vypadat a přibližné vzdálenosti. Tučně orámovaná část,
je to, co nevím, jest-li bude fingovat. Je tam označen "switch", ale
nevím ,jest-li je to správně. Vzdálenosti a rozložení zásuvek již
nemohu ovlivnit. Zásuvky i kabely jsou vedeny ve zdi a nelze
je nijak prodloužit.
Otázkou rovněž je, zda takové zapojení bude zvládat router.
Laicky to chápu tak, že každá z kamer je jako by byly připojeny
počítače. Ale tato úvaha je pravděpodobně chybná. Kamery
umí odesílat obrázky na FTP nebo mejlem a tu bude pravděpodobně
problém.
Tak že uvítám každou odbornou radu.
Doufám, že jsem v tomto fóru neudělal nějaký maglajz. Když jo,
tak prosím admina, ať to mázne.
Dík za rady.
Zapojení kamer do počítačové sítě.
Moderátoři: Mods_junior, Mods_senior, HW spec team
- domitea
- Tvůrce článků
- Příspěvky: 1971
- Registrován: 24 čer 2009 19:46
- Bydliště: Královehradecký kraj
- Kontaktovat uživatele:
Re: Zapojení kamer do počítačové sítě.
Síťově to je zapojené dobře. Tyhle lan kamery se chovají jako počítače (pro síť), jen co je to za typ?
// Počkej si někoho moudřejšího, jsem jen učeň
// Počkej si někoho moudřejšího, jsem jen učeň
-
Uziv00
Re: Zapojení kamer do počítačové sítě.
1. na router můžeš zapojit kolik switchů chceš (tedy teoreticky), myslím, že i úplně nejobyčejnější umožňují připojit až 255 míst - blíže manuál, či specifikace výrobce.
2. To, že jsou kamery připojeny jako by byly PC je v pořádku.
A dál už je to jen teorie, záleží na tom, o jaké kamery jde.
Takže, pokud jsou kamery PoE, je třeby mít switch, který to podporuje.
Pokud umí jen zasílat na ftp, pak někde v síti musí nějaký ftp běžet - ta není problém - např caesarftp
Kamery většinou mívají napevno nastavitelnou IP (bez podpory DHCP), ale taky to nemusí být pravda
záleží na inteligenci kamer - možná je lze konfigurovat přes webové rozhraní, pak je to bez problémů. Ty lepší požadují Surveillance Station, což dnes podporuje každý lepší NAS.
2. To, že jsou kamery připojeny jako by byly PC je v pořádku.
A dál už je to jen teorie, záleží na tom, o jaké kamery jde.
Takže, pokud jsou kamery PoE, je třeby mít switch, který to podporuje.
Pokud umí jen zasílat na ftp, pak někde v síti musí nějaký ftp běžet - ta není problém - např caesarftp
Kamery většinou mívají napevno nastavitelnou IP (bez podpory DHCP), ale taky to nemusí být pravda
záleží na inteligenci kamer - možná je lze konfigurovat přes webové rozhraní, pak je to bez problémů. Ty lepší požadují Surveillance Station, což dnes podporuje každý lepší NAS.
Re: Zapojení kamer do počítačové sítě.
Kamery jsou AVerDiGi SF1311 H-B
Šlo mi hlavně o ten switch, jest-li to tak zapojit jde.
Jset-li lze na jednu zásuvku RJ45 zapojit takto přes
switch víc zařízení.
Kamery lze konfigurovat přes webové rozhraní.
Další postup bude asi systémem pokus-omyl.
Dík za odpovědi.
--- Doplnění předchozího příspěvku (28 Říj 2011 19:37) ---
Jo a ještě je tu jeden fakt. Mám spojení z providerem přes WiFI a jednu pevnou
IP adresu. To bude další oříšek, jak se na jednotlivé kamery dostat z venku.
Mno, uvidíme. Začnu s nákupem switche a začnu drátovat.
Něco z toho vypadne.
Šlo mi hlavně o ten switch, jest-li to tak zapojit jde.
Jset-li lze na jednu zásuvku RJ45 zapojit takto přes
switch víc zařízení.
Kamery lze konfigurovat přes webové rozhraní.
Další postup bude asi systémem pokus-omyl.
Dík za odpovědi.
--- Doplnění předchozího příspěvku (28 Říj 2011 19:37) ---
Jo a ještě je tu jeden fakt. Mám spojení z providerem přes WiFI a jednu pevnou
IP adresu. To bude další oříšek, jak se na jednotlivé kamery dostat z venku.
Mno, uvidíme. Začnu s nákupem switche a začnu drátovat.
Něco z toho vypadne.
-
- Podobná témata
- Odpovědi
- Zobrazení
- Poslední příspěvek
-
- 1 Odpovědi
- 6085 Zobrazení
-
Poslední příspěvek od HappyMental
-
- 4 Odpovědi
- 4839 Zobrazení
-
Poslední příspěvek od WinDroid
-
- 12 Odpovědi
- 9027 Zobrazení
-
Poslední příspěvek od petr22
