Přeji krásný víkend,
přišel jsem si o radu ohledně zasíťování sklepního bytu.
Internet DSL Bonding až 250/25 Mbit/s. S tím, že sousední dům dosahuje na tuhle rychlost.
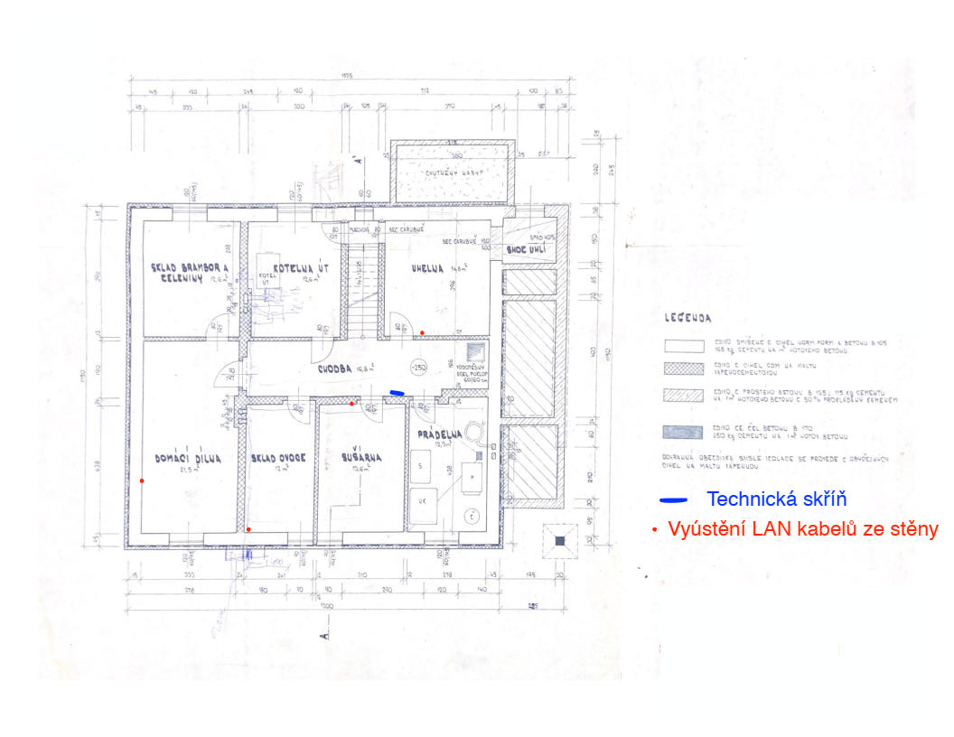
Už jsou natažené 4 kabely ve stěnách. Jejich vyústění je viz obrázek červená tečka. Začínají ve skříni na chodbě ve skříni (na obrázku znázorněná modrá čára).
Uhelna je budoucí pracovna - připojen bude počítač, možná televize a asi AP?.
Domácí dílna je budoucí obývák a kuchyně - připojen bude AP a televize.
Sklad ovoce je budoucí ložnice - tady bude zásuvka zatím neobsazená možná AP? - později v budoucnu možná televize
Sušárna je budoucí místnost pro zvířátka - nejspíš žádné připojené zařízení. Zásuvka z preventivních důvodů.
Ty 4 kabely jsou už nataženy. Další přidat by bylo rozbít zeď.
Natažený kabel je Cat 6a.
O co mi jde.
Bude potřeba ještě vyrobit zásuvky.
https://www.suntech.cz/instalacni-krabi ... 25411.html
https://www.alza.cz/ctnet-keystone-ftp- ... 548080.htm
Něco takového bude stačit?
Terminátor budenejednodušší nechat natáhnotu až do té technické skříně, nebo někde vyústit dřív a ještě dotáhnout LAN do kříně?
Dále bych bych potřeboval poradit s výběrem ohledně routeru. Asi by stačil i nějakou router bez switche - když jsou jenom 4 zásuvky a vypnout WiFi. Vím, že se tu dost doporučuje Asus. Osobně jsem zažil jenom modemy dodávané od UPC a O2. Občas někdo chtěl nastavit nejčastěji TP-Link, ale větší osobní zkušenosti s nimi nemám, tak si nechám poradit.
Dále rada s výběrem AP a jejich počet. Na WiFi budou pravidelně snad jenom mobilní telefony (2) a notebooky (1-2). Nejvíc času na se na tom bude trávit asi v obývacím pokoji (viz plánek Domácí dílna), v pracovně (viz plánek Uhelna) a v ložnici (viz plánek Sklad ovoce). Nabízí se proto umístit WiFi AP do obývacího pokoje (Domácí dílny) a pracovny (Uhelny). Nevím co s ložnicí, kde je odhadované použití jenom telefony. Je tam, ale tlustá stěna. Tak nevím jestli koupit jenom 2 a otestovat připadně dokoupit třetí, nebo koupit rovnou 3.
Díval jsem se na Deko M4, ale nechám si poradit. Osobní zkušenost s nimi nemám.
Snad to nebude matoucí. Kdyby byl problém, tak ještě upravím ty názvy přímo v plánku.
Ještě dodatek, že je mezi sousedními domy mezera, kde projede auto a v horních patrech domu není žádná WiFi ani Internet. V budoucnu určitě bude. Takže rušení by neměl být problém.
Zasíťování sklepního bytu
Moderátoři: Mods_junior, Mods_senior, HW spec team
-
- Podobná témata
- Odpovědi
- Zobrazení
- Poslední příspěvek

